






PLAN
ライフスタイルに合わせたお部屋をお選びいただけます。
| 月額賃料 (1~6F) | 266,000~290,000円 |
|---|---|
| 共益費・管理費 | 90,000円 |
| 敷金 (1~6F) | 月額賃料の2か月分 |
約18帖のゆとりある広さと、2面採光による快適さが魅力の角住戸プラン。玄関から室内が見えにくくプライバシーを保てるクランクインタイプ。開放的な対面キッチンで、料理中もパートナーと会話が楽しめます。2カ所の大型クローゼットにより、室内もスッキリ。
| 月額賃料 | 260,000円 |
|---|---|
| 共益費・管理費 | 90,000円 |
| 敷金 | 月額賃料の2か月分 |
約23.8帖の広々とした空間は、2人での快適な暮らしに十分なスペースを確保。2面採光により、明るく風通しの良い空間が実現され、2カ所のクローゼットとシューズキャビネットが完備され、住まい全体をすっきりと保てます。
| 月額賃料 (2~6F) | 170,000~181,000円 |
|---|---|
| 共益費・管理費 | 75,000円 |
| 敷金 (2~6F) | 月額賃料の2か月分 |
一人暮らしにゆとりと快適さを提供する約15.2帖の広々とした空間のワンルームプラン。 アウトポール設計により、家具のレイアウトも自由自在。 シューズキャビネットやクローゼットなど、必要な収納スペースも十分です。
| 月額賃料 (3~6F) | 149,000~156,000円 |
|---|---|
| 共益費・管理費 | 75,000円 |
| 敷金 (3~6F) | 月額賃料の2か月分 |
約12.5帖の広さは快適で充実した一人暮らしを楽しめるワンルームプラン。アウトポール設計が採用されているため、家具のレイアウトが自由自在。シューズキャビネットやクローゼットなど、十分な収納スペースも備えています。
| 月額賃料 (1~6F) | 120,000~130,000円 |
|---|---|
| 共益費・管理費 | 60,000円 |
| 敷金 (1~6F) | 月額賃料の2か月分 |
一人暮らしに適したゆとりある約10.1帖のワンルームプラン。 日常生活を考慮した機能的な動線設計が施され、室内に柱型の出ないアウトポール設計で家具の配置がスムーズ。 シューズキャビネットやクロゼットなど、必要な収納スペースも充実。
豊かで広大な北海道。その中心地、札幌に近接しながら閑静な北広島に、メディカルセンターが併設されたアクティブシニア向け高齢者住宅で安心と充実の暮らしを。
入居者募集中
随時ご見学いただけます
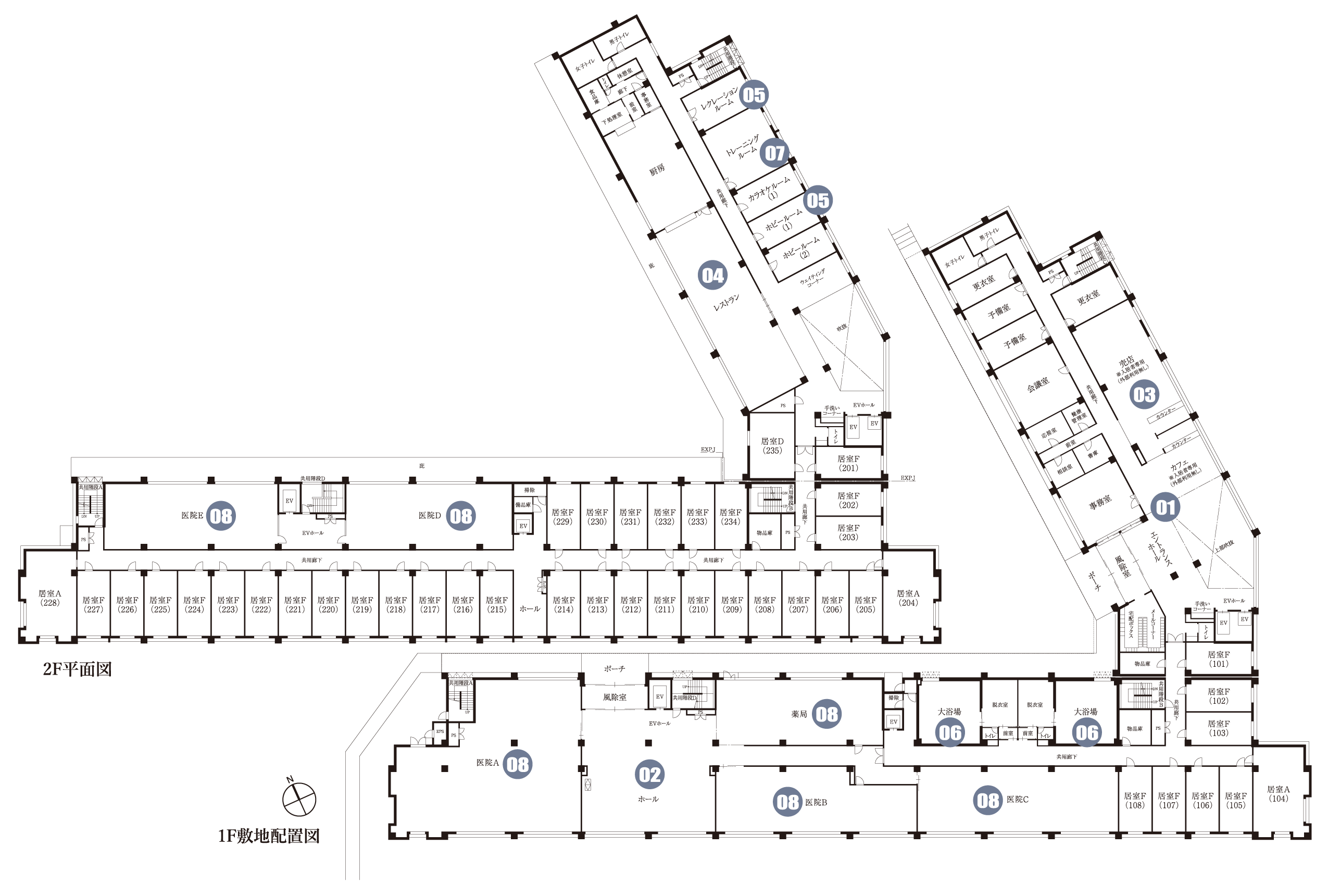
全体概要
1
エントランスホール/カフェ
2
ホール
3
売店
4
レストラン
5
レクレーション・ホビールーム・カラオケ
6
大浴場
7
トレーニングルーム
8
医院・薬局
本計画はまだ構想段階にあり、デザインを含む内容が今後変更される可能性があります。
掲載の完成予想CGは図面をもとに作成しており、建物の形状・仕様・色調・外構・植栽などは、行政官庁の指導や施工の都合、改良のために一部変更が生じることがあります。敷地周辺の建物や電柱、標識、架線、ガードレール、植栽などは一部簡略化・省略しています。植栽は特定の季節を再現したものではなく、竣工時には完成予想図と同程度の成長はしていない可能性があります。
敷地配置図・平面図は計画段階の図面を基にしており、変更が生じる場合があります。